
| タイプ | 部屋数 | 広さ | 駐車スペース |
|---|---|---|---|
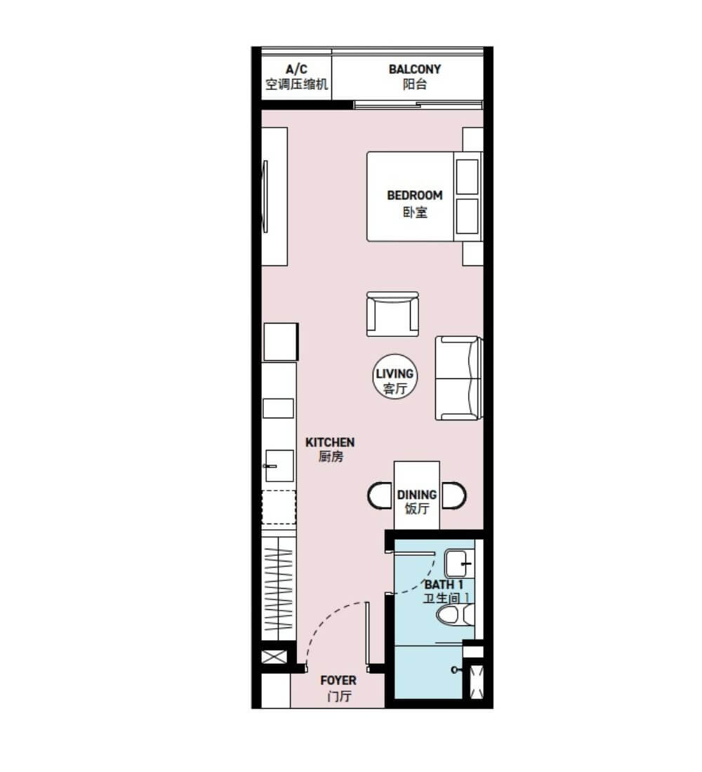
| C | 1 + 1(スタディエリア) | 657sq.ft (61m²) | 0-1 |
| D | 2 | 818sq.ft (76m²) | 1 |
クアラルンプール中心部のゴールデントライアングル内に位置する大規模複合開発エリアBBCC(Bukit Bintang City Centre) に立地します。
徒歩圏にはモノレール・LRT・MRTが交差するHang Tuahトランジットハブがあり、市内主要地への移動が非常にスムーズです。また KLCC、TRXなどのランドマークにも近く、商業・ビジネスの中心に直接アクセスできる抜群のロケーションが特徴です。
SWNK Houzeは、クアラルンプール中心部Bukit Bintangに広がる大規模統合開発エリア「BBCC(Bukit Bintang City Centre)」に位置する都市型レジデンスです。三井不動産がBBCCと共同開発する「ららぽーとBBCC」があり、徒歩でショッピング、食事、娯楽が完結する生活動線は、日本人居住者にも高い快適性を提供します。
建物は30階建て・全411戸で構成され、スタジオタイプから3ベッドルーム、デュアルキータイプまで多彩な間取りが用意され、単身者からファミリーまで幅広いニーズに対応しています。
また、プール、ジム、多目的ホールなど共用施設も充実しており、生活利便性、資産性、日系企業開発環境の安心感がそろった、在マレーシア日本人にとって魅力的な住まいです。
「最新の販売状況」や「実際に見学したい」など、お気軽にお問い合わせください。